Trilocale in vendita

Lissone, Via Tripoli
€ 225.000
3 locali 3 locali
75 Mq 75 Mq
1 bagno 1 bagno

Trilocale in vendita

Lissone, Via Tripoli

Descrizione annuncio

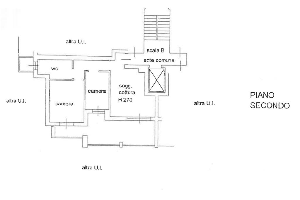
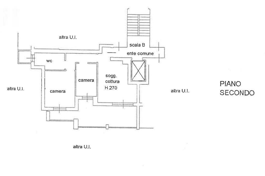
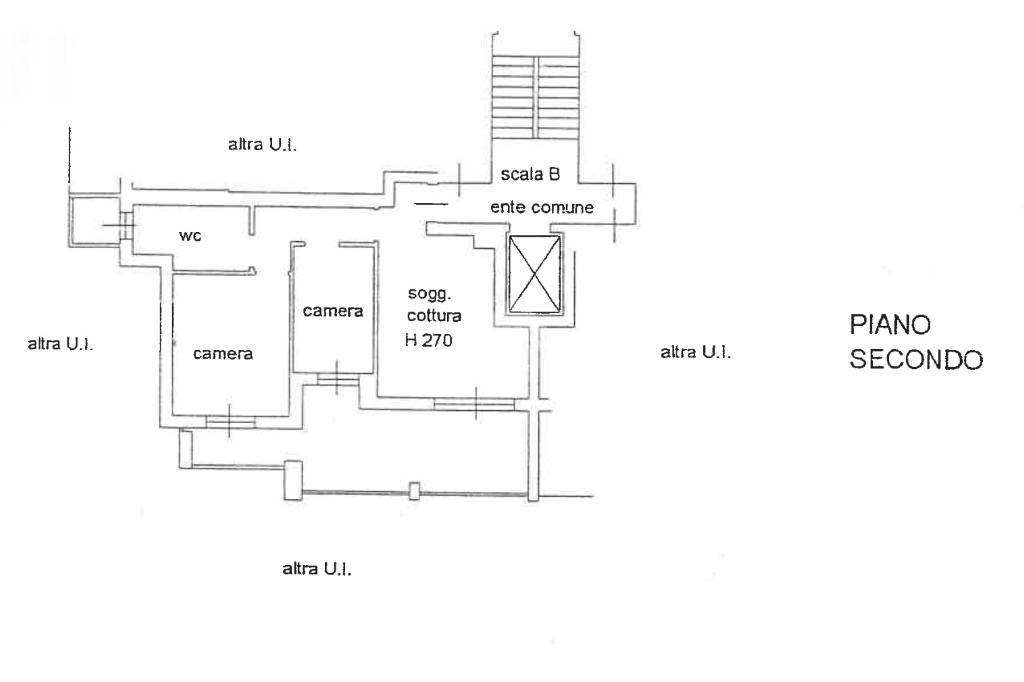
Nel comune di Lissone, proponiamo un trilocale situato al secondo piano di un condominio di recente costruzione, risalente al 2009. L'appartamento, di 75 mq, offre spazi ben distribuiti e finiture in extra capitolato che ne esaltano l'eleganza e la funzionalità.

La zona giorno composta da un luminoso soggiorno con angolo cottura, si apre su un ampio terrazzo, ideale per momenti di relax all'aperto, mentre la zona notte è servita da un disimpegno che collega una cameretta, una camera matrimoniale e un bagno con balcone.

La soluzione si completa con un box auto di euro 15.000 , pertinenziale all'immobile e un vano cantina.

Questa soluzione abitativa rappresenta un'opportunità interessante per chi cerca un ambiente moderno e confortevole in una zona ben servita.

Ricerchiamo ragazzi e ragazze di età compresa tra i 18 ed i 25 anni da formare ed avviare alla professione di agente immobiliare.

Mostra tutto

Nelle vicinanze

Trasporto pubblico Trasporto pubblico
Lissone-Muggiò
Lissone-Muggiò
780 m
Desio
Desio
1,4 Km
Trasporto pubblico
400 m
Via Matteotti - Via Carducci (Lissone)
Via Matteotti - Via Carducci (Lissone)
620 m
Ricariche auto elettriche Ricariche auto elettriche
Lidl Lissone
1,7 Km
U2 Supermercato Biassono | EnelX
2,8 Km
Scuole Scuole
Scuola Secondaria di Primo Grado Benedetto Croce
370 m
Scuola Primaria Dante Alighieri
390 m
IIS-IPSIA Giuseppe Meroni
860 m
Scuola Elementare San Giorgio
860 m
Scuole
870 m
Farmacia Farmacia
Nuova
450 m
Farmacia Pozzi
530 m
Farmacia Centrale
580 m
Parafarmacia Dott.ssa Citterio
810 m
Farmacia Comunale n. 1
960 m
Ospedali Ospedali
Ospedale di Lissone
910 m
Ospedale San Gerardo
2,4 Km
Supermercati Supermercati
Iperal
160 m
Carrefour Market
680 m
IN's Mercato
750 m
U2
1,1 Km
Di Più
1,1 Km
Negozi Negozi
Missaglia
160 m
Saxx
210 m
Cashmere Mania
330 m
Complici
430 m
Spiga di Grano
440 m
Bar Bar
Bar Il Falco
660 m
Uncle Paul
760 m
Real Beach
830 m
Level
960 m
Bar
1,5 Km
Ristoranti Ristoranti
Yume
210 m
Ristorante La Salita
300 m
Anema e Core
340 m
Officina della Pizza
400 m
Miseria e Nobiltà
410 m
Mostra tutto

Caratteristiche

Rif.:
61114566
Piano:
2 di 3 con ascensore (Piano medio)
Box:
1
Balconi:
1
Terrazzi:
1
Camere da letto:
2
Mostra tutto
Prezzo Prezzo
€ 225.000
Prezzo box Prezzo box
€ 15.000
Rata mutuo Rata mutuo
€ 1.068 / mese
Spese annue Spese annue
€ 1.200
Proponi il tuo prezzoProponi il tuo prezzo

Classe Energetica

D
D
D
D
D
D
D
D
D
EP globale non rinnovabile:
199.99 kW h/m² anno
EP globale rinnovabile:
0.00 kW h/m² anno
EP invernale del fabbricato:
EP estiva del fabbricato:
Anno di costruzione:
2009
Riscaldamento:
Centralizzato
Tipo impianto:
A radiatori
Tipo alimentazione:
Metano

Ti interessa visionare l'immobile?

Fissa un appuntamento  Fissa un appuntamento

Richiedi informazioni

Clicca su Leggi per aprire l'informativa
* Questi campi sono obbligatori

Calcola il tuo mutuo

Semplice e senza impegno
Anticipo

( % )
Mutuo

( % )

pochi semplici passi

inserisci i tuoi dati
Questionario completato
Grazie per aver richiesto un appuntamento senza impegno con un nostro Consulente del Credito e Assicurativo.

Hai inserito correttamente tutti i dati necessari e a breve riceverai una e-mail con un link da convalidare per inviare i tuoi dati.
Affiliato
Studio Perillo Srl
Via San Rocco, 38 20851 Lissone (MB)

Il nostro staff


  • Melissa Miraglia
    Coordinatrice

  • Roberta Perillo
    Coordinatrice

  • Samuele Sibio
    Collaboratore

  • Giusi Trovato
    Collaboratrice

  • Carmelo Vella
    Responsabile

  • Nicola Perillo
    Affiliato
Via San Rocco, 38 20851 Lissone (MB)
Zona: Lissone-Garibaldi
Mostra su mappa
Orari: Lun-Ven dalle 9.00 alle 12.30 e dalle 14.30 alle 19.30 - Sab dalle 9.00 alle 14.00
Affiliato
Studio Perillo Srl
Via San Rocco, 38 20851 Lissone (MB)

2026 Tecnocasa Franchising S.p.A. - P. IVA 08365160152 - Via Monte Bianco 60/A 20089 Rozzano (MI). Ogni agenzia ha un proprio titolare ed è autonoma. Privacy policy | Policy utilizzo | Cookie policy